Espace propriétaire
fr

Votre recherche

Solenzara (20145)

3 pièces - 79,30 m²

Appartement 2 chambre avec terrasse et vue mer au centre de Solenzara

452 400 €
Ref : V700099280
Découvrir le bien

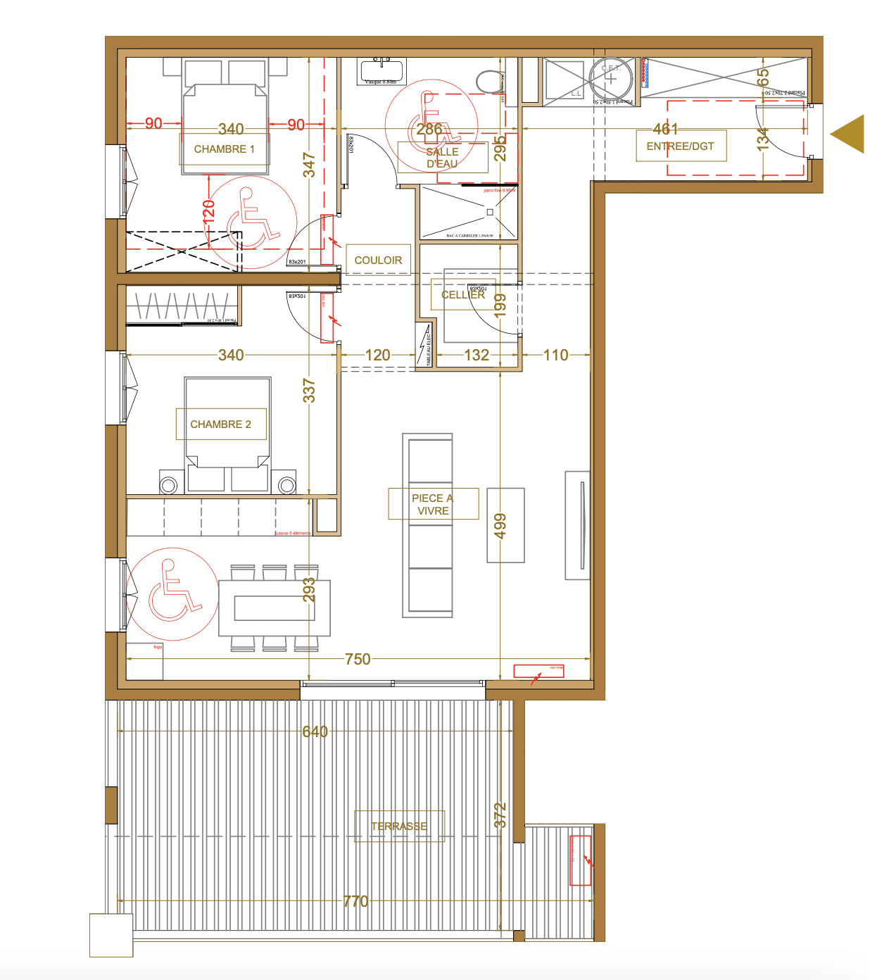
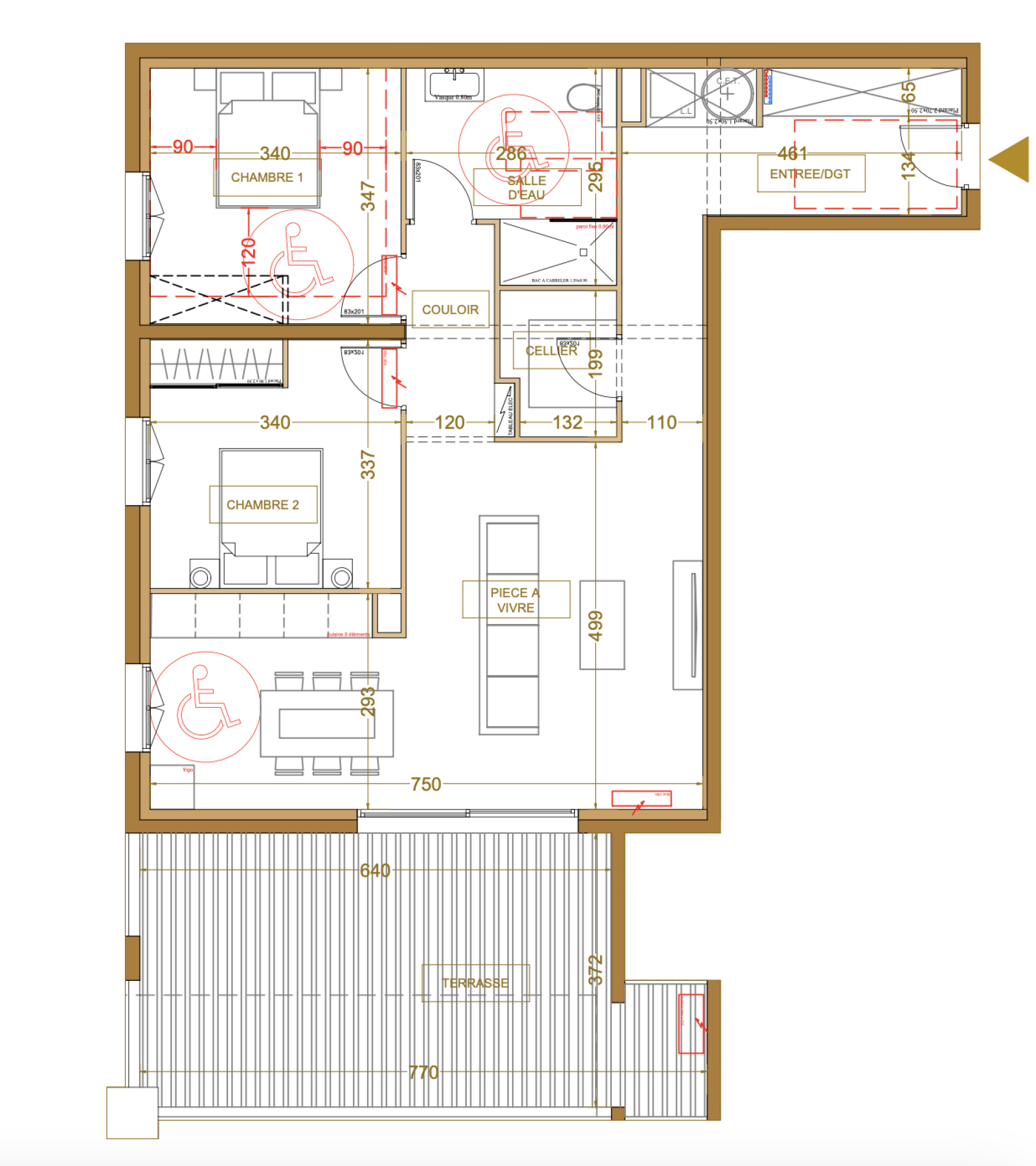
Trés beau T3 de 80 m², comprenant une terrasse de 26 m² et une place de parking privée. Situé au deuxième étage d’un immeuble aux normes PMR en cours d’achèvement, en plein centre de Solenzara, il offre une vue agréable sur le port et un cadre de vie paisible à proximité de toutes les commodités.

TRAD_ZEPHYR_Caracteristique TRAD_ZEPHYR_Valeurs
Code postal 20145
Surface loi Carrez (m²) 79,30 m²
Nombre de chambre(s) 2
Nombre de pièces 3
Etage 2
Ascenseur OUI
Vue mer
TRAD_ZEPHYR_Caracteristique TRAD_ZEPHYR_Valeurs
Nb de salle d'eau 1
Cuisine Américaine
Terrasse OUI
Murs mitoyens 1
Exposition Est
Année de construction 2026
TRAD_ZEPHYR_Caracteristique TRAD_ZEPHYR_Valeurs
Copropriété NON
TRAD_ZEPHYR_Caracteristique TRAD_ZEPHYR_Valeurs
Prix de vente honoraires TTC inclus 452 400 €
Etage 2
entrée 12.3 m²

cellier 2.9 m²

salon/sejour 30 m²

dégagement 3.5 m²

chambre 11.8 m²

chambre 11.5 m²

7.3 m²

DPE GES
  • Commerces et santé
  • Loisirs
  • Ecoles
  • Transports
  • Pratique
Contacter pour ce bien
L'agence
Téléphone 09 88 45 91 91
Adresse
Avenue du 9 Septembre 20240 Ghisonaccia

* Champ obligatoire

Les informations recueillies sur ce formulaire sont enregistrées dans un fichier informatisé par La Boite Immo agissant comme Sous-traitant du traitement pour la gestion de la clientèle/prospects de l'Agence / du Réseau qui reste Responsable du Traitement de vos Données personnelles. La base légale du traitement repose sur l'intérêt légitime de l'Agence / du Réseau. Elles sont conservées jusqu'à demande de suppression et sont destinées à l'Agence / au Réseau. Conformément à la loi « informatique et libertés », vous disposez des droits d’accès, de rectification, d’effacement, d’opposition, de limitation et de portabilité de vos données. Vous pouvez retirer votre consentement à tout moment en contactant directement l’Agence / Le Réseau. Consultez le site https://cnil.fr/fr pour plus d’informations sur vos droits. Si vous estimez, après avoir contacté l'Agence / le Réseau, que vos droits « Informatique et Libertés » ne sont pas respectés, vous pouvez adresser une réclamation à la CNIL. Nous vous informons de l’existence de la liste d'opposition au démarchage téléphonique « Bloctel », sur laquelle vous pouvez vous inscrire ici : https://www.bloctel.gouv.fr Dans le cadre de la protection des Données personnelles, nous vous invitons à ne pas inscrire de Données sensibles dans le champ de saisie libre.
Ce site est protégé par reCAPTCHA, les Politiques de Confidentialité et les Conditions d'Utilisation de Google s'appliquent.

Découvrir nos outils