Espace propriétaire
fr

Votre recherche

Solaro (20240)

Local commercial - 162 m²

Local professionnel – 162 m² – Idéal Pôle Médical ou Cabinet Pluridisciplinaire

532 300 €
Ref : 19230
Découvrir le bien

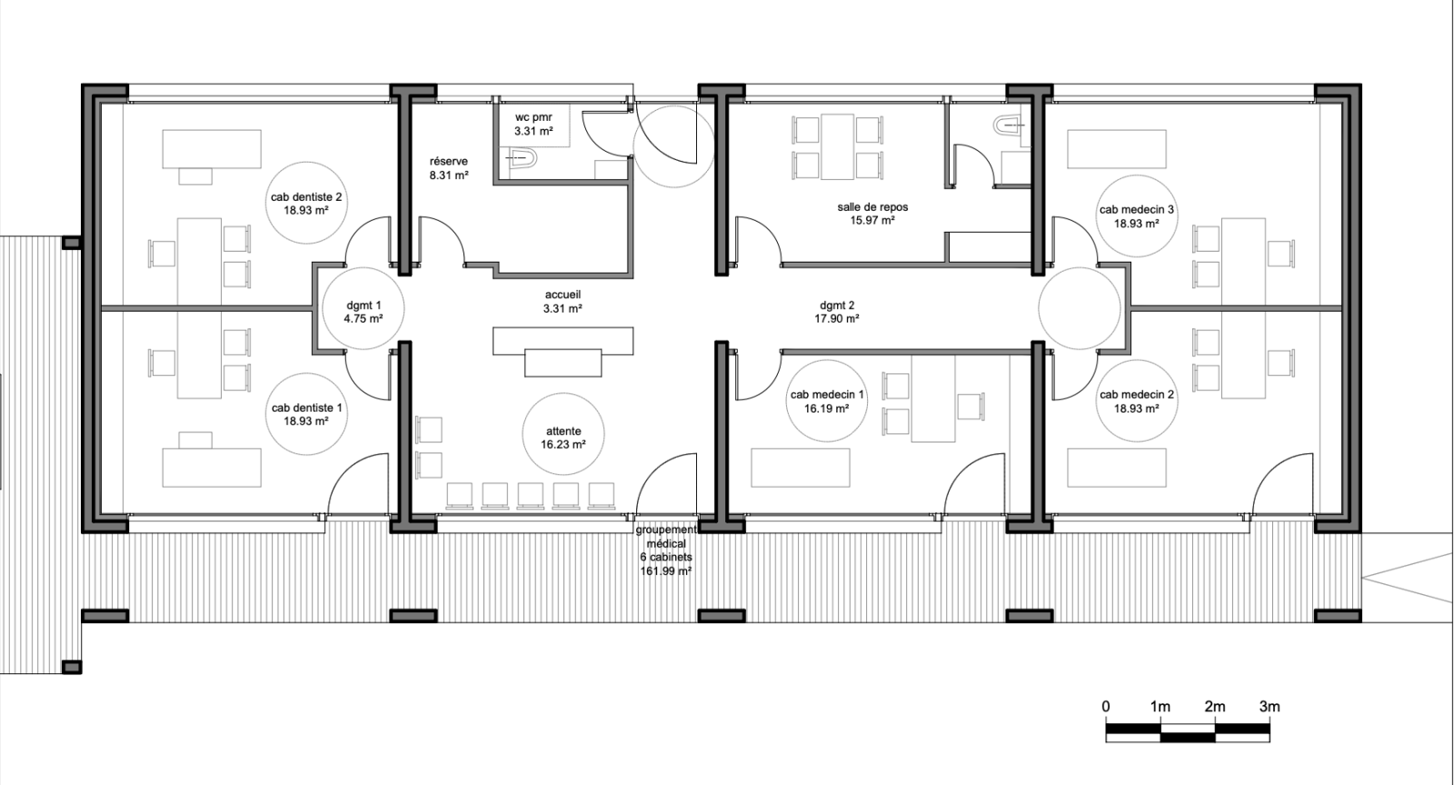
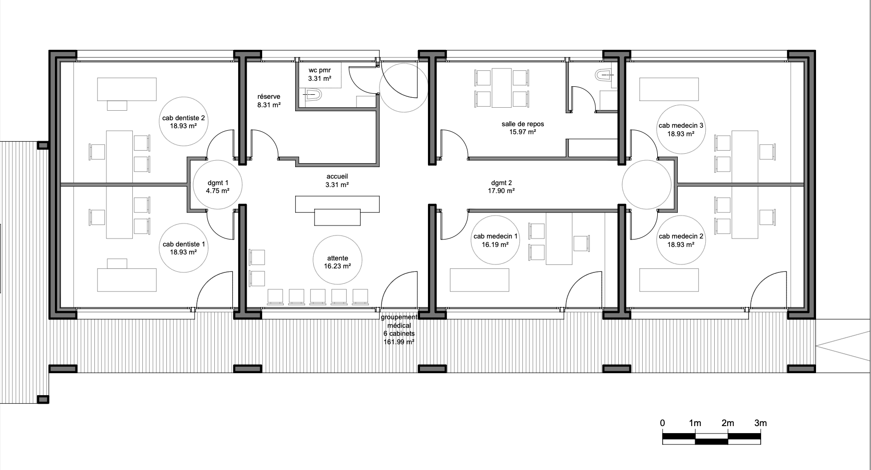
À vendre, grand local professionnel neuf de 162 m² situé en rez-de-chaussée d’un bâtiment moderne, partageant un parking commun avec d’autres commerces et services.

Conçu pour un pôle médical ou une activité libérale, il comprend :
5 espaces de consultation (idéal pour dentiste, généraliste, spécialiste…)
Une salle d’attente spacieuse
Un accueil
Une réserve
Un espace repos
Un WC PMR

Cet emplacement stratégique, en accès direct à la nationale, assure une visibilité optimale et une accessibilité idéale

TRAD_ZEPHYR_Caracteristique TRAD_ZEPHYR_Valeurs
Type de transac Local commercial
Code postal 20240
Nombre de pièces 1
Nombre de niveaux 1
Superficie (m²) 162
TRAD_ZEPHYR_Caracteristique TRAD_ZEPHYR_Valeurs
Vitrine 1
TRAD_ZEPHYR_Caracteristique TRAD_ZEPHYR_Valeurs
Copropriété OUI
Lot n° 15
nombre de lots 15
TRAD_ZEPHYR_Caracteristique TRAD_ZEPHYR_Valeurs
Prix de vente honoraires inclus 532 300 €
Honoraires à la charge acquéreur 6 %
Rez de chaussée
accueil 3.31 m²

Attente 16.23 m²

réserve 8.31 m²

WC 3.31 m²

Repos 15.97 m²

dégagement 4.75 m²

dégagement 17.90 m²

Cabinet 18.93 m²

Cabinet 18.93 m²

Cabinet 18.93 m²

Cabinet 18.93 m²

Cabinet 16.19 m²

DPE GES
  • Commerces et santé
  • Loisirs
  • Ecoles
  • Transports
  • Pratique
Contacter pour ce bien
L'agence
Téléphone 09 88 45 91 91
Adresse
Avenue du 9 Septembre 20240 Ghisonaccia

* Champ obligatoire

Les informations recueillies sur ce formulaire sont enregistrées dans un fichier informatisé par La Boite Immo agissant comme Sous-traitant du traitement pour la gestion de la clientèle/prospects de l'Agence / du Réseau qui reste Responsable du Traitement de vos Données personnelles. La base légale du traitement repose sur l'intérêt légitime de l'Agence / du Réseau. Elles sont conservées jusqu'à demande de suppression et sont destinées à l'Agence / au Réseau. Conformément à la loi « informatique et libertés », vous disposez des droits d’accès, de rectification, d’effacement, d’opposition, de limitation et de portabilité de vos données. Vous pouvez retirer votre consentement à tout moment en contactant directement l’Agence / Le Réseau. Consultez le site https://cnil.fr/fr pour plus d’informations sur vos droits. Si vous estimez, après avoir contacté l'Agence / le Réseau, que vos droits « Informatique et Libertés » ne sont pas respectés, vous pouvez adresser une réclamation à la CNIL. Nous vous informons de l’existence de la liste d'opposition au démarchage téléphonique « Bloctel », sur laquelle vous pouvez vous inscrire ici : https://www.bloctel.gouv.fr Dans le cadre de la protection des Données personnelles, nous vous invitons à ne pas inscrire de Données sensibles dans le champ de saisie libre.
Ce site est protégé par reCAPTCHA, les Politiques de Confidentialité et les Conditions d'Utilisation de Google s'appliquent.

Découvrir nos outils